Rear extension in Ackworth with full design + build, delivering open-plan living with underfloor heating
This rear extension in Ackworth was delivered as a full design & build project, managed end-to-end by Enhanced Building Management.
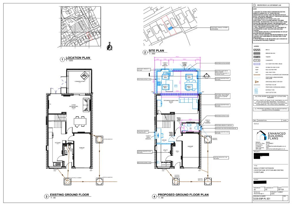
Planning, drawings, and regulatory approval were handled by our sister company, Enhanced Building Plans, securing Prior Approval before construction began.
The client’s brief: move the kitchen to the rear to create a bright open-plan space, convert the former kitchen into a utility, WC and office, and install full underfloor heating throughout the ground floor.
Technical Details
Project Duration: 5 months
Extension Type
Structure
Planning Type: Prior Approval
Explore the Proposed Plans
Before construction began, our in-house design team at Enhanced Building Plans carefully developed a layout that maximised space, light, and flow throughout the ground floor.
Below, you can explore the proposed plans for this rear extension in Ackworth, showing how the new kitchen, dining area, and utility spaces were designed to work seamlessly together.
These reduced-size plans provide a quick overview of the project’s design — perfect for seeing how the new layout transformed the property from concept to completion.
(Click the images below to view in full screen.)
The Team We Worked With
We collaborated with the following specialist trades to bring this extension to life
Groundworks
Bricklayer
Roofer
Joiner
Electrician
Plumbing & Heating
Plasterers
Plasterers
Windows & Glazing
Underfloor Heating
Structural Engineer
Challenges
With limited site access and the need for structural underpinning, this build required careful coordination across several specialist trades. Thanks to the skill and dedication of the experienced tradespeople we work alongside, the project was completed to a high standard and on schedule.
Each of our projects is completed using trusted local trades to ensure the highest quality of workmanship.
Explore the full gallery of images below to see the transformation from start to finish.
After the initial meeting, we had complete trust in Scott. His building knowledge is vast and the trades he uses are highly skilled, knowledgeable, professional and go the extra mile.
Scott’s communication is excellent and is always available for any questions. Any problems encountered were quickly resolved and any new amendments we needed always accommodated. Never, at any point during all the works, did we feel worried, or concerned during such large structural changes.
See the full review on our Google Business Profile














































